CASA MR

RESIDENCIAL

CASA MR

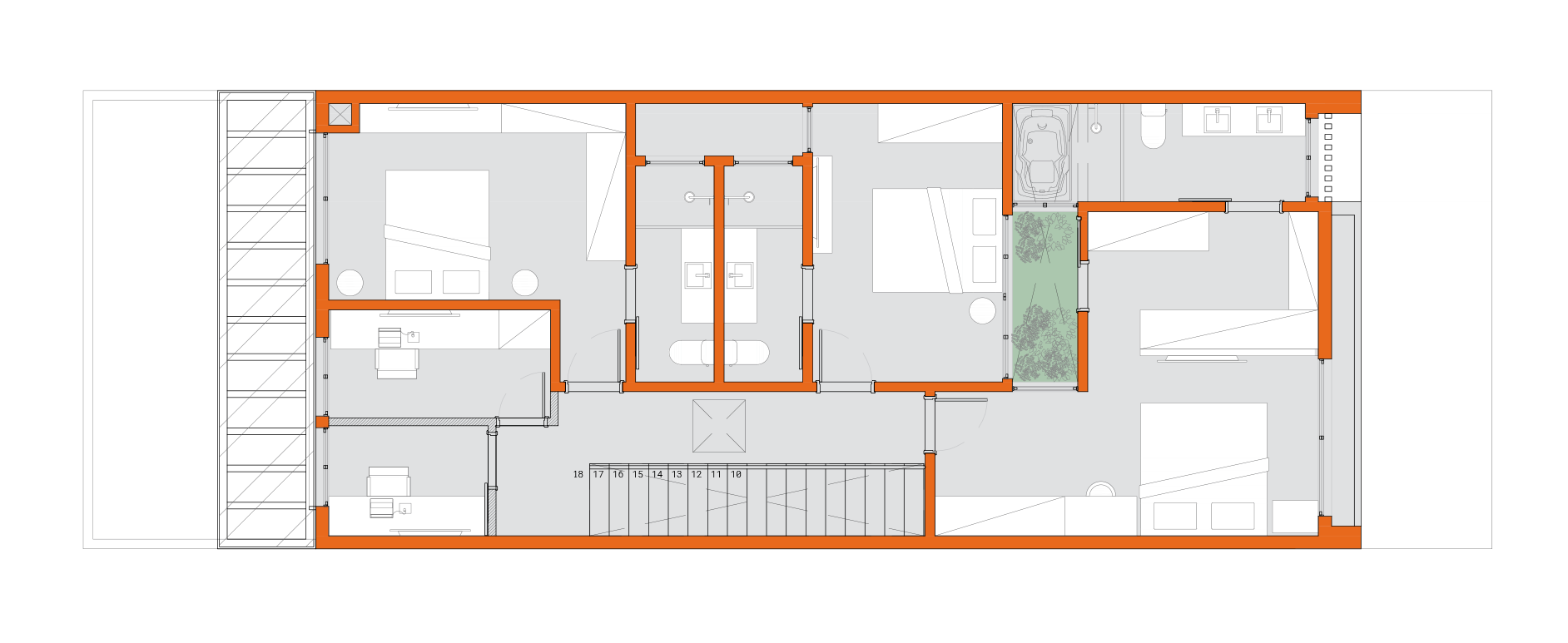
Em um terreno de 150m² com duas fachadas livres, o ponto de partida foi o desafio: dar forma a uma casa de 200m² com fluidez, luz e respiro. O programa de necessidades pedia integração, acolhimento e boas soluções. No térreo, os espaços se conectam num grande living pensado para receber. A área externa, com piscina e estar, se funde ao interior através de painéis de vidro que desaparecem ao abrir. No pavimento superior, os quartos e escritórios ocupam as duas frentes livres, favorecendo a iluminação e a ventilação cruzada. Claraboias e aberturas generosas levam luz natural até a escada e ao jardim interno — que, além de luz, traz verde e ar para dentro.

ISOMÉTRICA ISOMÉTRICA
PLANTA BAIXA - TÉRREO PLANTA BAIXA - TÉRREO
PLANTA BAIXA - SEGUNDO PAVIMENTO PLANTA BAIXA - SEGUNDO PAVIMENTO
PLANTA BAIXA - COBERTURA PLANTA BAIXA - COBERTURA